GRANDREVE茅ケ崎

要相談 (要相談/坪) 管理/共益費 0円

神奈川県茅ヶ崎市幸町22-27

東海道本線「茅ケ崎」駅徒歩3分

価格
要相談(要相談/坪) 管理/共益費 0円
面積
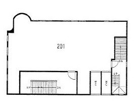
20.15坪~21.24坪(66.63㎡~70.22㎡)
所在地
神奈川県茅ヶ崎市幸町22-27
築年
2026年3月(予定)
駐車
-
交通

東海道本線茅ケ崎」駅 徒歩3分

GRANDREVE茅ケ崎の基本情報

物件名
GRANDREVE茅ケ崎
価格
要相談(要相談/坪)
管理/共益費
0円
築年月
2026年3月(予定)
所在地
神奈川県茅ヶ崎市幸町22-27
交通

東海道本線茅ケ崎」駅 徒歩3分

GRANDREVE茅ケ崎の詳細情報

設備条件
駐車場/月額
-/-
取引態様
一般媒介

GRANDREVE茅ケ崎で募集中の物件

  1. 1

    21.24坪 (70.22㎡)

    要相談(要相談/坪)

  2. 2

    20.51坪 (67.82㎡)

    要相談(要相談/坪)

  3. 3

    20.15坪 (66.63㎡)

    要相談(要相談/坪)

近隣の物件

  1. 茅ヶ崎市元町

    - (128.90㎡)

    49.35万円(1.27万円/坪)

  2. 茅ヶ崎市松林2丁目

    - (182.50㎡)

    49.5万円(0.9万円/坪)

  3. 茅ヶ崎市出口町

    - (52.88㎡)

    7.2万円(0.45万円/坪)

  4. 茅ヶ崎市香川4丁目

    - (85.28㎡)

    20万円(0.78万円/坪)

GRANDREVE茅ケ崎

お気軽にお問い合わせください

LINEからお問い合わせ 無料お問い合わせ

株式会社ユーミーネット テナントセンター

0466-90-5732

9:30~18:00

(休:1-3月を除く毎週水曜日と毎週日曜日)