来店予約

下川入貸事務所

11万円(8461.54円/坪)

管理 / 共益費 -

神奈川県厚木市下川入48-1

小田急小田原線「本厚木」駅バス36分神奈川中央交通「六本松(厚木市)」停歩2分

相模線「下溝」駅徒歩56分

相模線「原当麻」駅徒歩55分

賃料 / 坪単価
11万円 / 8461.54円
敷金(保証金)
2ヶ月(0ヶ月)
所在地
神奈川県厚木市下川入48-1
交通

小田急小田原線本厚木」駅 バス36分 神奈川中央交通「六本松(厚木市)」 停歩2分

相模線下溝」駅 徒歩56分

相模線原当麻」駅 徒歩55分

管理 / 共益費
-
礼金
11万円
建物面積
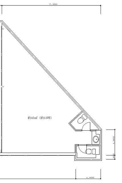
13.00坪(43.00㎡)
築年月
1996年4月(築30年)

セールスポイント

賃料は11万円です。前面に2台分の駐車場が空いているので、車をお持ちの方も安心です。エアコン付きの物件で、温度管理が楽々です。こだわりポイント満載の下川入貸事務所。

担当者のコメント

便利なスーパー「ベルク 厚木下川入店」まで20mです。この物件は月11万円と、グレードの高い物件となっております。メンテナンスも簡単なエアコン付きの物件で、温度管理が楽々。2台分は駐車スペースが空いております。

基本情報

保証金
0ヶ月
敷引 / 償却
- / -
建物面積
43.00㎡
所在階 / 階建て
1階 / 2階建
建物構造
鉄骨造
築年月
1996年4月(築30年)
種別
店舗事務所
契約期間
定期借家 2028年1月1日まで
保証会社 / 料金
必加入 / その他
賃料100%
駐車場 / 月額
空有(2台) / 5,000円 (税込) 駐車場は前面2台あり。
現況
空家
入居可能時期
相談
取引条件の
有効期限
2026年04月24日

設備条件

設備条件
  • 公営水道 / 公共下水 / 電気有 / エアコン
設備(その他)
    エアコン

その他

賃貸区分
定期借家権
更新料
1ヶ月(新賃料)
保険会社 / 料金
有  借家人賠償保険  20,000円  / 2年
取引態様
仲介
物件番号
102427819
情報更新日
2026年04月10日
次回更新予定日
2026年04月24日
取扱会社
  • 株式会社ユーミーネット テナントセンター
  • 神奈川県藤沢市藤沢223-2 ユーミー藤沢センタービル3F
  • TEL:0466-90-5732
  • 神奈川県知事 (2) 第30000号
備考
2028年1月までの契約となります。※更新・再契約は不可
敷地内駐車場2台まであり(1台5,000円/月)

近隣の物件

  1. レンブラントスタイル本厚木

    厚木市中町2丁目

    - (203.63㎡)

    169.4万円(2.75万円/坪)

  2. K.Sビル

    厚木市中町2丁目

    - (193.85㎡)

    77.41万円(1.32万円/坪)

  3. 本厚木駅前ビル

    厚木市中町2丁目

    0坪 (35.83㎡)

    13.13万円(1.21万円/坪)

  4. 森の里ショッピングプラザ 2階銀行等

    厚木市森の里1丁目

    - (220.00㎡)

    38.75万円(0.58万円/坪)

よく見られている物件

  1. 鶴が台住居付き店舗

    茅ヶ崎市鶴が台

    - (97.00㎡)

    10万円

  2. 磯﨑コーポ

    平塚市花水台

    - (25.80㎡)

    6.5万円

  3. 藤沢市辻堂元町1丁目の店舗事務所

    藤沢市辻堂元町1丁目

    - (15.30㎡)

    6.71万円

  4. 鈴与レジデンス

    藤沢市羽鳥3丁目

    - (49.68㎡)

    13.2万円

下川入貸事務所

下川入貸事務所

11万円

-

13.00坪(43.00㎡)

お気軽にお問い合わせください

LINEからお問い合わせ 無料お問い合わせ

株式会社ユーミーネット テナントセンター

0466-90-5732

9:30~18:00

(休:1-3月を除く毎週水曜日と毎週日曜日)

来店予約